Детский сад на 280 мест рядом с «Лахта Центр»

В Приморском районе Петербурга, недалеко от «Лахта Центра», построят новый детский сад с бассейном на 280 воспитанников. 

Здание будет трехэтажным, включая один подземный. Площадь застройки составит 6,6 тысяч квадратных метров.

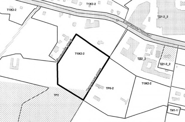
Дошкольное образовательное учреждение появится на территории муниципального образования «Лахта-Ольгино» по адресу: Петровская аллея, земельный участок 1П, — это юго-западнее пересечения Петровской аллеи и Соловьиной улицы. 

Разрешение на строительство действует до 2 октября 2026 года.

Источники текста:

1) https://mr-7.ru/

2) https://asninfo.ru/



Реализация национальных проектов

• Детские дошкольные учреждения для детей в возрасте до трех лет


Разрешение на строительство

сентября 2024


Назначение

Социальная инфраструктура / Учреждения образования


Вид строительства

Новое строительство


Общая площадь

6600 кв/м


Этажность

2


Адрес

Санкт-Петербург,
Петровская аллея, земельный участок 1п


Поделиться в социальных сетях

Подрядчики


Фонд "Газпром Социальные Инициативы"

Саморегулируемая организация

Ассоциация СРО «ГС. П»


Адрес

Москва, Москва,
119526, проспект Вернадского, 101-3

Подробнее о компании
Фонд "Газпром Социальные Инициативы"

Застройщик

ОО "Газпром РСИ"

Саморегулируемая организация

Ассоциация СРО «ГС. П»

СРО А "Объединение изыскателей"

СС«ГС»


Адрес

Санкт-Петербург,
Большой Сампсониевский пр-кт, д. 28 к. 2 литера д

Подробнее о компании
ОО "Газпром РСИ"

Генеральный проектировщик

Стройматериалы