Реконструкция завода по производству автомобильных комплектующих

Госстройнадзор выдал ООО "Питерформ" (дочернее предприятие компании Magna) разрешение на строительство в рамках расширения завода по производству автокомплектующих в Левашово. Разрешение будет действовать до 26 октября 2023 года.

Площадь завода увеличится на 6,5 тыс. м2 (сейчас она составляет 30 тыс. м2). На новых площадях компания намеревается собирать кузова для автомобилей Hyundai Solaris и KIA Rio.

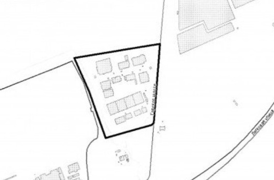
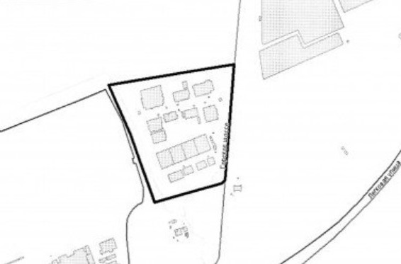
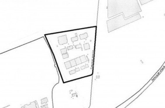
На Горском шоссе появятся пять новых объектов (цеха и инженерная инфраструктура), будут организованы три дорожных проезда. Это позволит разместить производителю новое оборудование для изготовления кузовных деталей автомобилей и установить роботизированные сварочные линии. 

Источники текста:

1) https://www.dp.ru/

2) https://nsp.ru/



Разрешение на строительство

июля 2022


Назначение

Производственные объекты / Заводы и цеха


Вид строительства

Реконструкция


Адрес

Санкт-Петербург, Левашово,
Горское шоссе, земельный участок 165 (местоположение: Горское шоссе, дом 165, корпус 3, литера А)


Поделиться в социальных сетях

Подрядчики


ООО "Питерформ"

Адрес

Санкт-Петербург, Шушары,
ул. Ленина, д.39 литер а

Подробнее о компании
ООО "Питерформ"

Застройщик

Стройматериалы